На Рено Меган не Горит Ближний Свет • Предохранители и их функции
Меняем лампы
Если вам впервые понадобилось заменить лампочку на Меган 2, то прежде чем приступить к этой операции, придется столкнуться с выбором осветительного элемента. Так как в продаже представлен большой их ассортимент, сделать выбор не так просто.
Лампочка ближнего света на Рено Меган 2 соответствует стандарту H7 – это однонитевая лампа с двухконтактным цоколем.
В настоящее время в продаже существует несколько типов таких ламп:
Исходя из данных таблицы, можно прийти к выводу, что «ксенон» и «светодиоды», например, для противотуманных фар на ВАЗ 2110 во всем кроме стоимости превосходят «галогенки».
Однако, последние обладают некоторыми важными достоинствами, которые могут перевесить чашу выбора:
- Световой пучок обладает неплохой проникающей способностью, в результате чего гораздо лучше «пробивает» снег, дождь и туман, чем свет «ксенона» и «светодиодов». Владельцы последних часто жалуются на форумах, что в непогоду качество освещения резко снижается.
- Простота установки – в отличие от новинок, «галогенки» не требуют установки блоков розжига и перепрограммирования электроники. Поэтому замену можно выполнить самостоятельно.
Как мы видим, каждый тип ламп обладает плюсами и минусами, поэтому нельзя сказать, что одни лучше других. Соответственно, каждый водитель должен сам решить, какая лампа ближнего света на Рено Меган 2 в его случае будет оптимальным вариантом.
Порядок замены
Замена лампочки ближнего света на Рено Меган 2 в левой и правой фаре выполняются по-разному.
Вначале рассмотрим, как установить ее с левой стороны:
- Прежде всего нужно завести двигатель и вывернуть руль до упора в левую сторону .
- Затем надо снять своими руками лючок, расположенный в колесной арке .
- Далее нужно просунуть руку в отверстие, нащупать круглую заглушку и демонтировать ее , слегка повернув в сторону. Заглушку следует вытащить через люк, выполняя операцию аккуратно, чтобы не уронить ее.
- После этого нужно нащупать лампочку с разъемом . Чтобы вытащить ее, надо потянуть на себя колодку расшатывая вверх/вниз.
- Вынув лампу с контактами, ее можно вытащить из люка на длину проводов, чтобы отсоединить от разъема машины и подсоединить новую лампочку . Разъем ближнего света на Меган 2 не имеет фиксаторов, поэтому его нужно просто потянуть, удерживая при этом цоколь.
- Затем лампочку с колодкой нужно на ощупь вставить в блок-фару и после этого установить заглушку .
Замена лампы ближнего света на Меган 2 в правой блок-фаре выполняется следующим образом:
- Нужно открыть капот и вытащить горловину бачка .
- Теперь, когда доступ к блок-фаре открыт, надо демонтировать заглушку и выполнить все описанные выше действия из подкапотного пространства.
Вот, собственно, и вся инструкция по установке новых галогенных лампочек ближнего освещения.

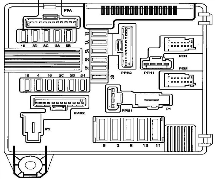
Предохранители и реле Renault Megane 2, схема и описание
Печка

Предохранители Рено Меган 2: где находятся, замена
- Колесо (в зависимости от того, какую лампу ближнего света необходимо поменять) выкручивается до упора во внешнюю сторону. Это делается для освобождения свободного пространства, так как замена лампы будет производиться именно через подкрылки. Для более свободного доступа колесо можно снять, однако в этом случае весь процесс выйдет более трудоемким и принесет лишь массу хлопот.
- Затем следует снять технологические заглушки с помощью защелки, тем самым открыв доступ к фаре. Этот способ для многих автовладельцев неудобен тем, что нужно иметь определенный уровень сноровки и изловчиться, чтобы дотянуться до фары Рено Меган и произвести замену лампы ближнего света.
- После того как владелец нащупает крышку фары, имеющую форму круга, внутри которой находится сама лампа ближнего света, необходимо будет ее повернуть по часовой стрелке, что сделать затруднительно, но возможно.
- Следующим шагом является извлечение лампы h7 Меган из самой фары. Основание лампы крепится к колодке, которую необходимо снять после крышки фары.
- В самой фаре лампа держится на двух пружинах-усах, их необходимо аккуратно отогнуть, и, вращая по часовой стрелке, вытащить сам элемент.
Перестал гореть ближний свет фар на Лада Гранта, не хочет включаться Находится рядом с замком зажигания в салоне автомобиля.
Блоки под капотом рено сценик 2
Общее расположение блоков и доступ к ним можете посмотреть в данном видео.
Предохранители в коммутационном блоке

| 1 | 70А Реле дополнительного подогрева 2 |
| 2 | 60А Монтажный блок предохранителей и реле в салоне |
| 3 | 40А Реле дополнительного подогрева 1 |
| 4 | 70А Электроусилитель рулевого управления |
| 5 | 50А Блок управления ABS |
| 6 | 70А Монтажный блок предохранителей и реле в салоне |
| 7 | 20А Реле подогрева топливного фильтра дизельного двигателя |
| 8 | 70А Блок управления предпускового подогрева |
| 9 | Не используется |
| Обозначение | Номинальная сила тока | Назначение |
| (A) | 40 А | Реле электростеклоподъемников или реле ксеноновых ламп |
| (B) | 40 А | Реле стоп-сигнала |
Реле и предохранители Logan New — Renault Logan, л., года на DRIVE2
- Леонид добрый день! Помогите кто столкнулся аналогичной проблемой и решил её. У меня рено меган 2, пропал ближний свет в правой фаре. Ближний свет в левой фаре…
Предохранитель и реле стартера Именно в основном блоке стоит предохранитель, отвечающий за работу стартера (позиция 19, номинал 25 А). Деталь 21 (на 20 А) защищает сразу несколько цепей — бензонасоса, катушек зажигания и системы подачи сжиженного газа (опция). Под основным блоком стоит плата расширения, на которой также установлены реле и предохранители.
