Не Горят Задние Габариты Мазда 3 bk. Сообщающие о неисправности
Расшифровка значков на приборной панели автомобиля
Красные значки говорят об опасности, и если загорается какое-либо обозначение таким цветом, стоит обратить внимание на сигнал бортового компьютера, чтобы предпринять меры по быстрому устранению неисправности. Иногда они не столь критичны, и продолжать движение автомобиля, когда горит такой значок на панели, можно, а иногда не стоит.
Желтые индикаторы предупреждают о неисправности или необходимости произвести какие-то действия по управлению автомобилем, или его сервисном обслуживании.
Зеленые лампочки обозначений информируют о сервисных функциях автомобиля и их активности.
Представим список наиболее часто возникающих вопросов и расшифровку, что означает горящий значок на панели.
Значок машины может гореть разный, бывает, что горит значок «машина с гаечным ключом», значок «машины с замком» или восклицательным знаком. Обо всех этих обозначениях по порядку:
Когда горит такой индикатор (машина с ключом), то он информирует о неисправностях в работе двигателя (зачастую сбой в работе какого либо датчика) или же электронной части трансмиссии. Чтобы выяснить точную причину потребуется производить диагностику.
Загорелась красная машина с замком, значит, возникли проблемы в работе штатной противоугонной системы и завести машину будет невозможно, но если этот значок моргает, когда машина стоит закрытая, то все в норме – автомобиль под замком.
Желтый индикатор машины с восклицательным знаком уведомляет водителя автомобиля с гибридным двигателем о неисправности электропривода. Сброс ошибки скидыванием клеммы АКБ проблему не решит — нужна диагностика.
Значок открытой двери все привыкли видеть горящим, когда открыта какая-то дверь или крышка багажника, но вот если все двери закрыты, а лампочка с одной или четырьмя дверцами продолжает светить, то зачастую проблему стоит искать в концевиках дверей (контакты провода).
Значок гаечного ключа выскакивает на табло, когда приходит пора произвести техническое обслуживание автомобиля. Является информационным индикатором и после ТО его сбрасывают.

Не Горит Подсветка Номера Мазда 3 bk – Переходники для iso разъемов
Предохранители Мазда 3: где находятся, замена Используя отвертку с плоским лезвием, поддеть и вынуть два фиксирующих пистона накладки багажника из пластика.
Основные причины
Практически все проблемы, имеющие отношение к автомобильной электрике, решаются примерно одним путем. Нужно искать потенциальную или вероятную причину неисправностей в самом проблемном объекте, либо разбираться в системе, отвечающей за подачу питания.
Точно так же обстоят дела с устройствами, которые называются стоп-сигналом. Если они перестали работать, тогда следует искать причину в одном из следующих пунктов:
- Возникли проблемы с плавкими предохранителем. Он окислился или полностью вышел из строя;
- Есть неисправности в самих лампах или одной лампе, в зависимости от того, сколько стопов не работает;
- Причина кроется в механизме, ответственном за включение предупредительного сигнала при нажатии тормоза;
- В гнезде, куда устанавливается лампочка стопа, окислились контакты;
- Появились более серьезные проблемы, связанные с повреждением проводки.
Опираясь на озвученные причины, почему могут перестать работать стопы, можно сделать вполне объективный вывод. Действительно серьезная неисправность касается лишь износа или повреждения электропроводки. Решать такую задачу своими руками не всегда правильно.

Когда отказывают задние стопы (левый и правый), либо дополнительный центральный повторитель стоп-сигнала, не спешите искать автоэлектрика и предлагать ему деньги за устранение неполадок.
Не лишним будет изучить руководство по эксплуатации и понять, как добраться на вашей машине до стопов.
Предохранитель
Первое, с чего стоит начать, это с поиска монтажного блока, в котором располагается ответственный за стоп-сигнал плавкий предохранитель.
Причем у каждой машины своя электросхема и особенности расположения предохранителей.
Они могут существенно отличаться в зависимости от транспортного средства, такого как:
- ВАЗ 2110;
- ВАЗ 2107;
- Тойота Рав 4;
- Форд Фьюжн;
- ВАЗ 2114;
- ВАЗ 2115;
- Форд Фокус;
- Шевроле Лачетти;
- Лада Гранта;
- Хендай Акцент;
- Рено Логан;
- Хендай Солярис и пр.
Сгоревший предохранитель довольно часто становится причиной отказа ряда оборудования, включая световые прибору. Предохранители проверяют визуально и с помощью мультиметра.
Но есть простой и действенный способ проверки, занимающий минимум времени. Для этого запустите двигатель и зажмите кнопку клаксона. Это подходит не для всех моделей авто, но на множестве ТС за звуковой сигнал и стопы часто отвечает один и тот же предохранитель.
Почему не горят стоп сигналы: как быстро найти и устранить причину
Блок предохранителей и реле Mazda 3 2008-2013 Значок руль может загораться в двух цветах. Если горит желтый руль, то требуется адаптация, а при появлении красного изображения рулевого колеса с восклицательным знаком, уже стоит обеспокоиться отказом системы ГУР или ЭУР. Когда светится красный руль, то наверняка Ваше рулевое колесо стает очень трудно поворачивать.
Расшифровка предохранителей Мазда 3
Схема предохранителей автомобиля является важной информацией, в случае повреждения того или иного предохранителя необходимо знать расположение предохранителей. Подкапотный блок представлен предохранителями Fс 1 по 36 номер.
Предохранитель № 1 отвечает за электровентилятор и охлаждение. Номер 2 – электронасос гидроусилителя. № 3 – аварийные сигналы и омывка стекол, центральный замок и габариты. № 4 – фары, № 5 – цепь РТС, 7, 8, 19 — АБС, система устойчивости курса, 9 – силовая цепь.
Датчики 11 и 12 – зажигание и реле стартера. Номер 13 – подключается при зажигании и отключается при отключении стартера (в отличие от 11). 15 — климатконтроль, 17 – за обогрев задних стекол. F20- фары противотуманные. Звуковые сигналы — № 21. Номер 23– предохранитель омывателя фар.
В салоне располагаются датчики с 37 по 86 номер:
- D/LOCK 2 – центральный замок;
- 39-40 — дальний свет;
- 43 – прикуриватель;
- 44 – аудио;
- 45 – зеркала;
- 46 – правые габариты;
- 47 – разъемы для диагностики;
- 49 – цепь замка;
- 50 – управление электрическими приборами;
- 51 – поворотники и электросигнализация;
- 52 — люк в крыше;
- 53 — отмывка стекол;
- 55-56 – подъем стекол;
- 57 – система охраны;
- 58 – обогрев;
- 60-61 – ближний свет;
- 65 – подушка безопасности;
- 67 – устойчивость, рулевое управление;
- 68 – очистка стекол;
- 69 – управление двигателем;
- 70 – очиститель стекол;
- 74 – система обогрева сидений;
- 75 – замок центральный;
- 76 – компрессор кондиционера;
- 77- 78 – подъем стекол;
- 79 – свет во время заднего хода;
- 80- люк крыши;
- 81 –левые габариты;
- 82 – противотуманное освещение, подсветка приборной панели;
Пропущенные номера являются резервными предохранительными элементами. Также к ним относятся предохранители F83 – F86. В монтажном блоке салона размещены реле № 23 – ближний свет, 24 – селектор АКП, 25, 26 – скорости работы по очистки стекол, 27, 28 – дальнее освещение и габариты соответственно.
Читайте также: Форд фокус 2 замена юбки переднего бампера – 233-1 Ремонт ford focus ii — Энциклопедия журнала “За рулем”

| 15 | |
| 16 | |
| 17 | |
| 18 | |
| 19 | |
| 20 | |
| 21 | |
| 22 | |
| 23 * | |
| 24 * | |
| 25 * | |
| 26 * | |
| 27 * | |
| 28 * | |
| 29 * | |
| 30 * | |
| 31 * | () |
| 32 * | () |
| 33 * | |
| 34 * |
Лампы (лампочки) Мазда 3 BL, какая ближнего света, замена в габаритах, бардачке
- F1, F11 – вентилятор охлаждающего контура ДВС (40А);
- F2, F24, F36, F37, F38 – ЭБУ силового агрегата Mazda 3 BL(40, 10, 15, 15, 20А);
- F3, F15 – вспомогательные цепи (50, 7.5А);
- F4 – система кондиционирования (7.5А);
- F5 – дальний свет передней оптики (20А);
- F6 – ПТФ (15А);
- F7 – предохранитель омывателя фар Мазда 3 БЛ (20А);
- F8 – люк на крыше (15А);
- F9, F10 – подогревательные элементы лобового стекла справа и слева (40А);
- F12 – подсветка салонного пространства (15А);
- F13, F26, F30 – ABS (15, 40, 10А);
- F14 – DSC (20А);
- F16, F18, F29, F31 – не задействован;
- F17 – вентилятор отопительного и вентиляционного комплекса (40А);
- F19 – подогрев стекла сзади (30А);
- F20, F21 – замок зажигания (40А);
- F22 – сигнал (15А);
- F23 – стоповые огни (15А);
- F25 – насос подачи топлива (25А);
- F27 – система обогрева переднего кресла (20А);
- F28 – программа управления электрогидравлическим усилителем рулевого колеса (80А);
- F32, F33 – ближний свет передней оптики справа и слева (15А);
- F34 – подсветка панели приборов (7.5А);
- F35 – габариты сзади (15А);
- F39 – дроссельная заслонка (15А).
Расшифровка значков на приборной панели Открывается багажник Mazda 3 BL, и демонтируются фиксирующие пистоны внутренней обшивки в количестве десяти штук. Для этого они поддеваются за шляпки лезвием отвертки с плоским жалом.
Рекомендации по обслуживанию монтажного блока
- Периодически проверяйте состояние предохранителей, заменяйте новыми по мере необходимости;
- После длительных поездок по лужам, под дождем проверьте отсутствие влаги, конденсата в монтажном блоке. Просушите плату потоком сжатого воздуха;
- Устанавливайте модули с аналогичной силой тока (амперажом). Не допускайте превышение (занижение) Ампер;
- Если механизм внезапно перестал функционировать, не спешите его менять новым. Проверьте состояние модуля, используйте мультиметр для диагностики;
- В ходе профилактики проверяйте качество фиксации клемм, концевиков. Поджимайте пассатижами по мере необходимости.
Несмотря на внешнюю простоту конструкции монтажного блока, диагностические работы проводите в СТО. Непрофессиональное вмешательство в ремонт приводит к нежелательным последствиям.

| F (Ф-1) / 40 | Электрический вентилятор системы охлаждения двигателя |
| F (Ф-2) / 80 | Насос гидравлического усилителя |
| F (Ф-3) / 40 | Цепи питания: диагностический разъем, аварийка, стеклоочиститель спереди, на омыватель стекла, центральный замок, габариты |
| F (Ф-4) / 40 | Фары |
| F (Ф-5) / 80 | Электрическая цепь РТС |
| F (Ф-6) / 30 | Зарезервировано |
| F (Ф-7) / 30 | ABS, система курсовой устойчивости |
| F (Ф-8) / 20 | АБС дополнительно |
| F (Ф-9) / 30 | Электронный блок управления двигателем |
| F (Ф-10) / 10 | Зарезервировано |
| F (Ф-11) / 30 | Замок зажигания, стартер, дополнительная цепь питания |
| F (Ф-12) / 20 | Втягивающее реле стартера |
| F (Ф-13) / 30 | Вспомогательная цепь питания, зажигание |
| F (Ф-14) / 30 | Зарезервировано |
| F (Ф-15) / 40 | Система кондиционирования |
| F (Ф-16) / 15 | Зарезервировано |
| F (Ф-17) / 40 | Обогрев заднего стекла |
| F (Ф-18) / 10 | Зарезервировано |
| F (Ф-19) / 20 | Система курсовой устойчивости (дополнительно) |
| F (Ф-20) / 15 | Противотуманные фары |
| F (Ф-21) / 15 | Сигнал |
| F (Ф-22) / 15 | Зарезервировано |
| F (Ф-23) / 20 | |
| F (Ф-24) / 15 | На омыватель фар |
| F (Ф-25) / 10 | Бензонасос |
| F (Ф-26) / 10 | Система кондиционирования |
| F (Ф-27) / 20 | Генератор |
| F (Ф-28) / 15 | Зарезервировано |
| F (Ф-29) / 10 | Зарезервировано |
| F (Ф-30) / 15 | |
| F (Ф-31) / 10 | ЭБУ |
| F (Ф-32) / 10 | Центральный замок |
| F (Ф-33) / 5 | ЭБУ |
| F (Ф-34) / 15 | Штатный прикуриватель |
| F (Ф-35) / 5 | Модуль омывателя фар |
| F (Ф-36) / 15 | Резервация |
Ремонт Mazda 3 (Мазда 3): Система освещения. Описание, схемы, фото
- Открыть капот, заглушить мотор;
- В левой части, за АКБ отщелкнуть крышку корпуса монтажного блока;
- Пинцетом извлечь предохранитель с нужным порядковым номером. При необходимости уточняем номер на тыльной стороне крышки;
- Заменяем неисправный элемент новым;
- Проверяем целостность реле – коммутатора, устанавливаем новое по мере необходимости.
Сообщающие о неисправности Оставление отпечатков вызывает потемнение колбы в месте соприкосновения. При случайном касании потребуется протереть колбу проспиртованной ветошью, с последующим вытиранием насухо.
Что такое iso
- Посмотри на водительскую сторону, слева над твоими ногами
- другой вариант под капотом рядом с аккумулятором.
- Третий вариант, под перчаточным ящиком, сняв пластиковую крышку, защищающую предохранители.
Распиновка для различных марок авто и магнитол
7.3.7 Снятие и установка газоразрядной лампы фары
ВНИМАНИЕ Неправильное обслуживание газоразрядных фар может привести к поражению электрическим током. Отсоедините отрицательный провод от аккумуляторной батареи. Отсоедините переднюю комбинированную фару. Рис. 7.28 . Порядок снятия компонентов газоразрядной фары: 1 .

| 1 | — |
| 2 | Реле омывателя фар |
| 3 | Реле заднего противотуманного света |
| 4 | — |
| F77 | (30A) Вентилятор охлаждения |
| F78 | (30A) Вентилятор охлаждения |
Прицеп с бортами и днищем из ламинированной фанеры
Расшифровка схемы плавких вставок под капотом

Описание предохранителей на автомобиль Mazda 3: расположение, схема, цена
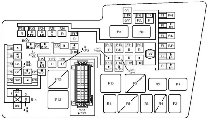
- R1-R9, R15, R16, R20 — не задействованы;
- R10 — блокировка АКПП;
- R11, R12 — I и II обороты дворников;
- R13 — дальний свет передней оптики;
- R14 — габаритные огни Mazda 3 BK;
- R17, R18 — цепи для запирания и отпирания замков дверей;
- R19 — дворники задние.
Тормозные лампы и их патроны Еще один момент. При проверке патронов также стоит взять новые лампочки. Случается так, что из-за окисления патрона выходит из строя сам осветительный прибор. То есть фактически возникает 2 неисправности одновременно.
